The Hollyhock House and the Olive Hill complex Aline
Barnsdall envisioned fell short and never reached her
desires. The house did not serve her as she intended and the
complex was exclusive to the upper class. This project reconceptualizes
the East portion of the Hollyhock house as a
place for exhibition and interaction with the public, rather
than an exclusive private home that is an object for exhibition
in itself. The project intends to insert a new demographic
into the site- that being inclusive and accessible to ordinary
people.
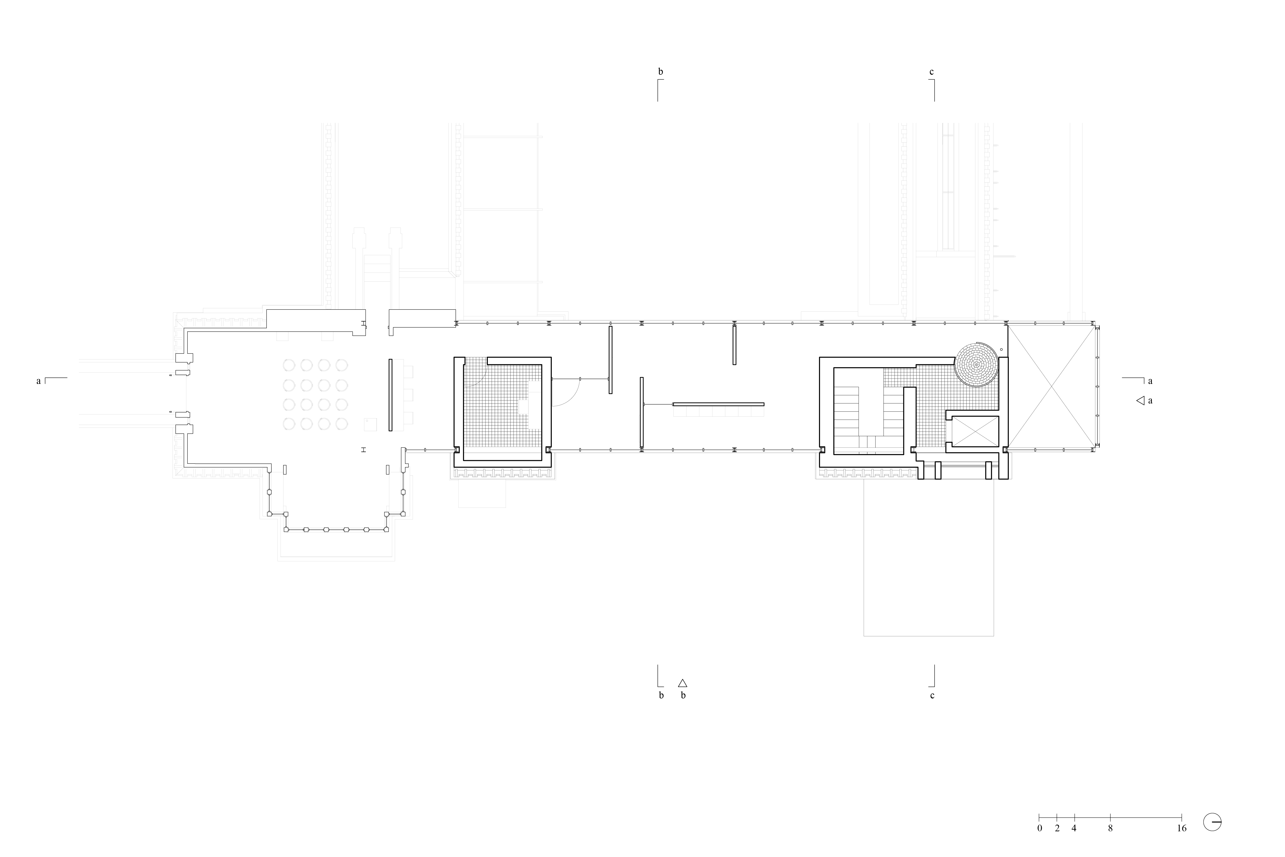
Rather than altering the existing footprint, the project
maintains the authenticity of the house by rendering
two portions facade in cast concrete which become solid,
heavy cores. Steel construction is inserted between the
cores creating two juxtaposing prominent planes. This
idea of inserting one condition within another is explored
conceptually with the conversation between private vs public.
Glazing slips into the steel
structure similarly to the slippage of the steel structure at the
existing cores. The heavy plinth at the cores is maintained,
but inverts itself where steel structure is present allowing the
new exhibition to float above the ground.